ORAR
L-V: 08-16:30
S: 10-14
D: închis
Scrie-ne un mesajGARANTIE 10 ani
ASISTENTA TEHNICA in toata perioada de realizare a proiectului
PROIECTARE sisteme fotovoltaice
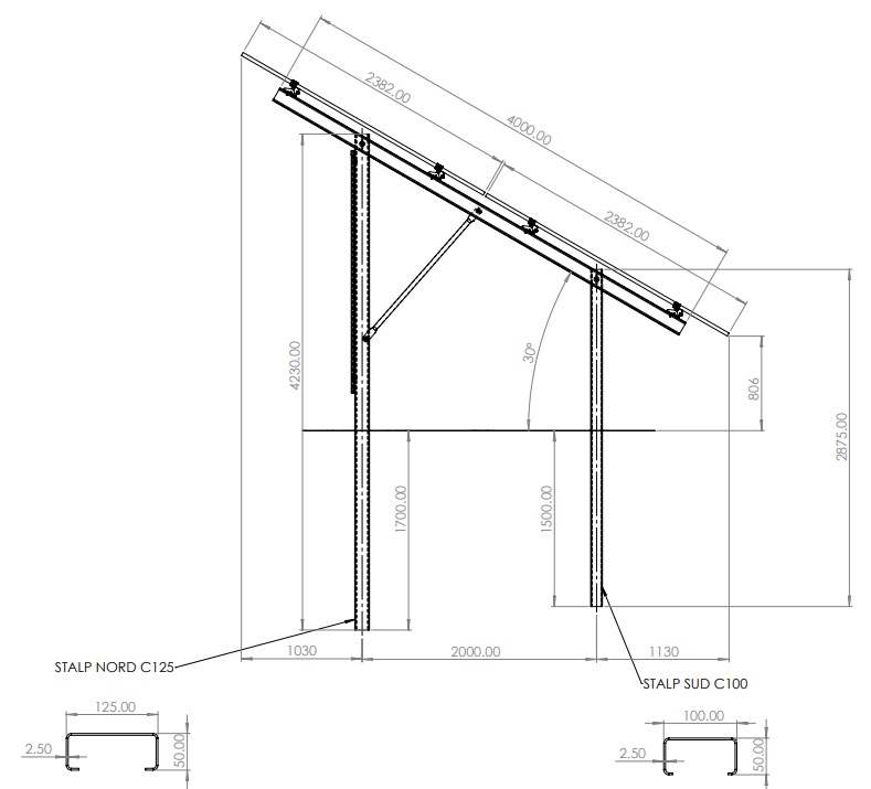
Structura de fixare la sol Zonetec Solar ZS_MASA_PV_2x12PV_24PV permite montarea a 24 panouri fotovoltaice pe 2 randuri verticale cu insertie 1.500 + 1700 mm. Sistemele de fixare la sol Zonetec Solar sunt special concepute pentru a oferi stabilitate și durabilitate superioară parcurilor fotovoltaice. Utilizând profile zincate laminate la rece, Zonetec Solar garantează o instalare rapidă, eficientă și economică, perfect adaptabilă oricărui tip de teren. Alegeți Zonetec Solar pentru a optimiza performanța și longevitatea proiectelor dumneavoastră fotovoltaice.
Recomandam efectuarea unui studiu geotehnic inainte de achizitie si instalare, pentru a putea asigura garantia sistemului de fixare. In absenta acestuia, responsabilitatea pentru montarea sistemului de fixare la sol revine beneficiarului lucrarii, fie acesta instalatorul sau clientul.


| Producator | Zonetec |
|---|---|
| Regim de utilizare | profesional |
| Suprafata de prindere | La sol |
| Aplicatii | Montarea panourilor fotovoltaice |
| Garantie persoane fizice (luni) | 180 |
| Garantie persoane juridice (luni) | 180 |
| Particularitati garantie | Pentru profilele zincate |